REFERENCIA: HSV145
VENTA
Solar en Aracena
53.000 €
Descripción de la propiedad
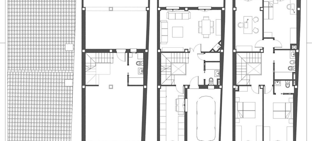
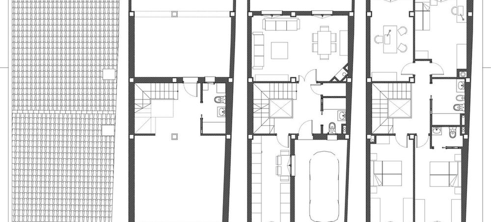
Venta de Solar en la localidad de Aracena (Huelva) con 148 m², con proyecto incluido en el precio.
En el proyecto cuenta con una construcción de 250m² de tres plantas distribuidos en la planta baja sótano, baño y porche.
En la planta primera garaje, cocina, recibidor, baño y salón comedor. En la planta alta cuatro habitaciones, baño y aseo. Con ascensor
En la planta sótano existe la posibilidad de hacer otro piso.
Además cuenta con dos plazas de aparcamiento y piscina.
Detalles básicos
Localización
Aracena
M² Terreno
398
M² Edificado
250
Plantas
0
Dormitorios
0
Baños
0
Características generales
Estado de conservación:
Bueno
Certificación energética:
-
Orientación:
-
Trastero / Almacén:
-
Cocina equipada:
-
Terraza / Patio:
-
Electricidad:
-
Agua:
-
Alcantarillado:
Si
Chimenea / Estufa leña:
-
Alumbrado Público:
Si
Acceso urbano:
Si
Piscina / Alberca:
-
Depuradora:
-
Lavadero:





